STRUCTURE 结构组成
COMPOSITION

设备组成
电葫芦,支架,拍打装置,拆袋装置
产品视频
可选
WORKING
PRINCIPLE
工作原理
用电葫芦及升降装置将吨包输送至拆包工位上,拍打装置帮助物料从吨包中流出,选用振动装置可破除拱桥,防止物料堆积,投料口设有除尘借口,对接除尘装置能有效防止粉尘溢出
解决吨袋卸料操作带来的安全问题
控制周围环境,防止粉尘污染
能针对各种流动性好与差、颗粒与粉剂等产品特性,使其自由顺畅的卸料
配置接口能有效与下游工序对接
产品特点
PRODUCT
FEATURES
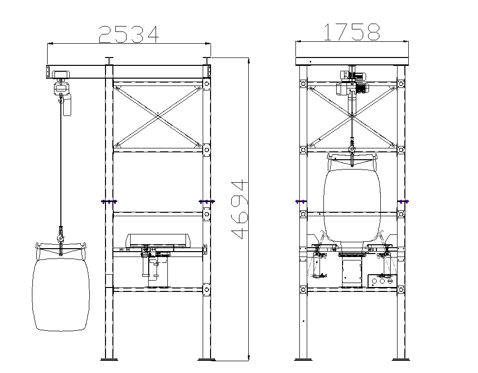
APPEARANCE 外观尺寸图
SIZE DRTAWING

PRODUCT 产品配置
CONFIGURATION
选材
| 材质名称 | 气动设备 | 传感器 | 钢材 | 手轮 | 电葫芦 |
| 材质图片 | ![]() | ![]() | ![]() | ![]() | ![]() |
| 品牌 | ![]() | ![]() | ![]() | ![]() | ![]() |
| SMC(日本) | TOLEDO(瑞士) | 太钢 | ELESA(德国) | NITCHI(日本) |
APPLICATION 应用案例
CASE





























